SuperHome
Layouts
Packages
Products
Get Package
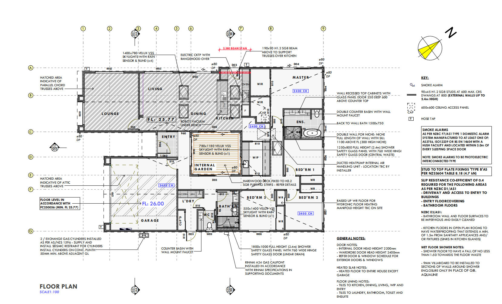
Lot 2 Hampton Grove
Prebbleton, Christchurch
4 Bed · 2 Bath · 2 Garage
Architectural home with internal garden.
Furniture Packages
Designed for this layout
Standard
$25000+
Complete furniture solution
View Package →
Floor Plan